

在大阪市中心,一座融合歷史與現代的建筑引發了人們對“垂直共生”的全新想象。東京建物三津寺大樓(Tokyo Tatemono Mitsutera Building)不僅保留了一座擁有200年歷史的傳統寺廟木構建筑,還在其上方建設了14層現代商業與酒店空間,構成一組集宗教、住宿和零售功能于一體的復合建筑。項目由東京建物株式會社開發。


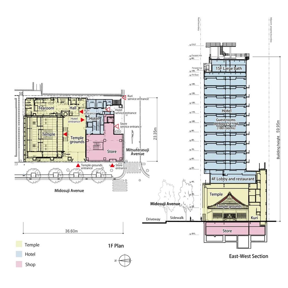
大廈共設地上14層、地下1層,核心構成包括:設置于三層中庭空間的密寺本堂,中高層酒店區域,以及底層的街道型商業界面。本堂建筑通過三階段整體平移工程從原址遷入,并與大樓主體結構間設置120至200毫米的獨立縫隙,用于確保地震反應時的結構分離,降低相互影響風險。



本堂建筑保留了傳統日式寺廟的典型特征,包括寬闊的飛檐、曲線屋頂和復雜的斗拱結構(tokyō),這些元素不僅具有裝飾性,還能有效分散屋頂重量,增強抗震性能。內部空間采用開放式布局,使用天然木材和金箔裝飾,營造出莊嚴的氛圍。此外,寺廟內還設有來自平安和江戶時期的佛像,供信眾參拜。













酒店區域由 Candeo Hotels 運營,設有180間客房,分布于中高層。底層商業部分與周邊街區連通,采用開放式街區布局。項目通過與寺方簽署定期土地租賃合同,在保障宗教設施繼續使用的同時,實現建筑物對土地的集約利用。








光寺大廈采用了在高密度城市環境中整合宗教空間與現代功能的布局方式。項目通過結構獨立設計,將歷史建筑嵌入當代建筑體系中,使寺廟空間與酒店、商業設施在垂直方向上共存,同時保持各自功能的清晰分區。建筑各部分間的結構界面處理,基于對既有木構建筑保護需求與城市土地使用效率的綜合考量。


在施工方面,寺廟本堂的平移過程分三階段完成,采用結構樁基與臨時支撐系統保持穩定。建筑主結構與本堂之間設置120至200毫米的緩沖間隙,以滿足地震響應時的位移需求。該方式在保留原建筑完整性的同時,實現了新舊結構的空間兼容與施工可行性。


原寺廟圖




項目圖紙





項目信息建筑事務所:大成建設株式會社項目地址:中央區心齋橋筋2丁目7番12號,大阪,日本項目年份:?2023項目面積:9530 平方米
圖片??aifoto,?SS 有限公司,digicri
END
本文經授權轉載自公眾號:青年建筑
精選文章: