
"
讓老人老有所依
說到養老,很多人就會提到日本,他們構建了一套「讓老人體面生活」的完整社會系統,干凈、整潔、人性化。從銀行到便利店,從預防養老到機構養老,每個階段都是專業為老年人設計,形成專門的產業鏈,變成”養老天堂“。
而北歐的高賦稅似乎成了北歐養老的托底。多樣化養老服務,涵蓋預防性養老與監護居住服務等,并改革養老照料體系,其養老建筑注重融入自然、社區融合以及人性化設計,為老年人營造溫馨舒適且具歸屬感的居住環境。
如今我們的人口老齡化浪潮來襲,關于養老變成衡量社會溫度的標尺,我們是否能真正讓老人在我們建造的房屋中老有所依,頤養天年,是各位建筑師需要思考的問題。
01
MONOLITH養老院/日本

雖然養老生活設施往往建在郊區,為老人提供更安靜的環境,同時降低土地成本。這座養老生活設施位于市區,處于久留米站的中心地帶,從久留米站步行只需 6 分鐘,公共交通和醫療服務四通八達。便利的地理位置也為家人探訪提供了方便、設計也強調了與當地社區的聯系,并不是一味地切斷老人與城市的關系。

▲場地平面

▲戶外花園
設計考慮的重點是確保老人能體驗戶外空氣、自然光線和聲音,培養與時間和社區的聯系感,增強場所的熟悉感。花園共有36個大小不一的廣場,每邊從1.6米到4.6米不等,融合了露臺、草坪、花壇、長凳、水景和涼亭等元素。居民在花園中漫步,可以欣賞到四季的變化。
主樓和涼亭是一個管狀和立方體狀的簡約混凝土體量,通過精心設計的紋理和開口,變成了令人舒適的 “巨石”,軟化了混凝土的硬度,為居民和游客營造了一種寧靜的感覺。立方體的涼亭的有節奏感的開口營造出光影之間的美麗對比,引起住戶和房客們的興趣。該空間既是休閑放松的空間,也是一個充分刺激感官的場所。?

▲正方形涼亭
涼亭外立面由裸露混凝土構成,原始粗糙的外觀提供了對抗地震和其他災害的意志。同時為了軟化混凝土給人的冷酷印象,定制的樣板也創造了一種富有質感的表面。外墻上蝕刻的條紋狀凹凸產生一致的陰影,與光滑的混凝土相比,減少了污垢的可見度,有助于降低維護成本。此外,還使用了粉煤灰混凝土來減少開裂。

▲混凝土體量

▲入口大廳
室內的氛圍寧靜而溫馨,以白色為主色調并點綴以褐色。在入口大廳,外觀上的條狀圖案被重新運用在木材上,強調了設計的連續性。為了便于清潔,乙烯基材料被普遍運用于輔助生活設施中,木材用于扶手及把手處,使住戶們可以體驗溫暖天然的材料質感。

▲ 走廊

▲ 公共餐廳
建筑師相信他們的設計成功的實現了目標:“創造了創建一個能讓我放心將自己的父母托付的輔助生活設施。”

▲ 夜景

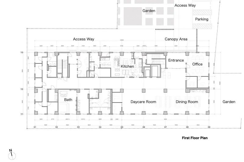
▲ 一層平面

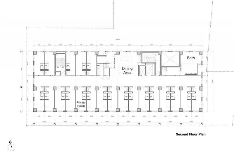
▲ 二層平面

▲北立面

▲ 南立面
02
日班館 / 日本

▲ 建筑外觀
新興養老院不是將老年人與城市隔絕開來,而是讓他們擁抱城市生活,過上有尊嚴的舒適生活。日本人口迅速老齡化,面臨著與世隔絕和護理人員短缺的問題。日班館Nibankan 位于東京市中心一條寧靜的綠色街道上,與城市交織在一起。??

▲ 建筑融入城市
Nibankan?與當地社會和社會融合,根據與社區距離的連續性對空間進行戰略性定位,使住戶能夠控制自己與社區的接觸程度,老人不只在建筑中生活,也在人群中活動,交流。

▲ 陽臺朝向大街
設計中的餐廳、沙龍和休息室都面向街道。這促進了與鄰居的休閑互動,同時有了曬太陽的積極空間。日班館二期標志著在東京充滿活力的城市景觀中心,向有尊嚴、相互聯系的老年生活邁出了大膽的一步。

▲ 階梯

▲ 采光中庭示意圖
面對極具挑戰性的陡坡,該設計巧妙地安排了人員和車輛的出入口,同時最大限度地增加了樓層數。建筑的主入口位于斜坡底部,擁有一個宏偉的兩層玻璃墻入口大廳,與一個引人注目的三層頂部采光中庭相連。這使得地下空間光線充足,打破了其地下空間的性質。外部樓層和內部樓層的巧妙結合,為所有空間帶來了非凡的開放感和連續性,創造了一個流暢的空間之旅。

▲ 采光中庭
該設計采用了創新的自然通風系統,三層中庭和走廊的窗戶和頂燈可根據風壓差做出動態響應。建筑外觀采用定制的鋁制百葉窗,分為四個模塊,設計優雅,結構堅固。這些精致的百葉窗增強了建筑的美感,確保了私密性,減少了太陽輻射,并隱蔽地隱藏了室外空調機。

▲ 一層平面
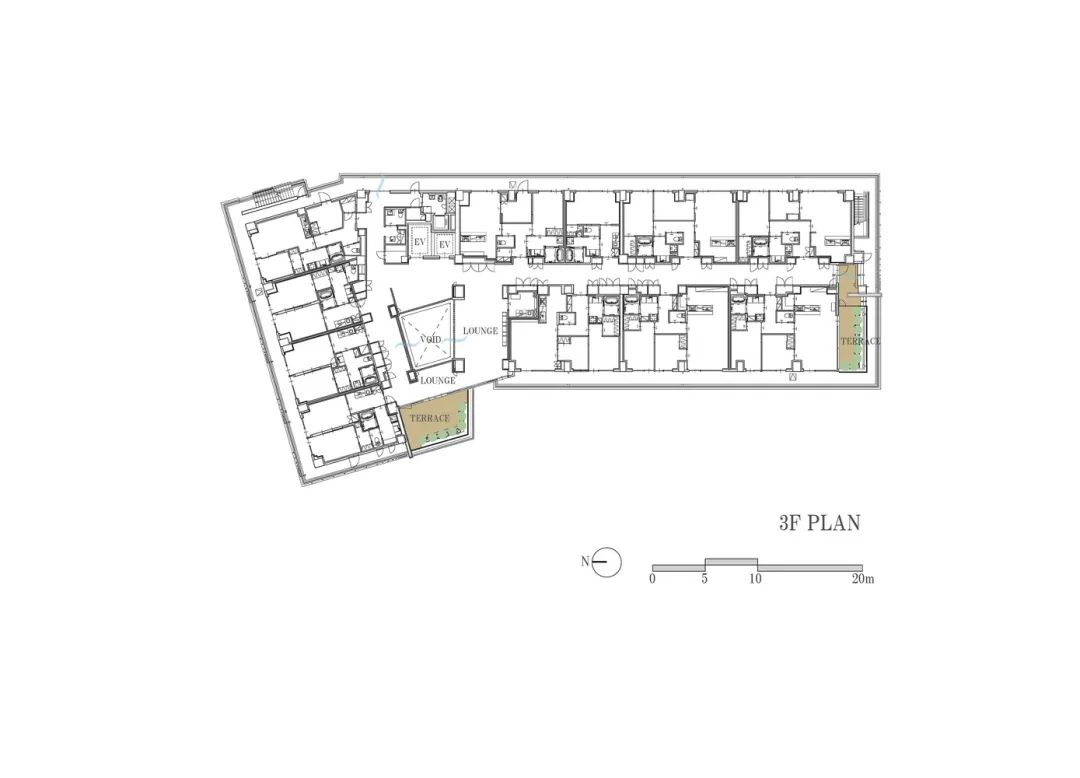
為了實現最大程度的包容性,其設計了 23 種獨特的戶型,面積從 35 平方米到 80 平方米不等。我們的目標是為住戶提供多樣化的選擇,讓他們在原有居住空間的基礎上找到自己喜歡的單元。建筑和每個房間的設計都考慮到了輪椅的無障礙通行和護理效率,確保通行便利,提高整體生活質量。

▲ 二層平面

▲ 三層平面

▲ B1平面

▲ 臨街立面
03
“Furuset Hageby”/挪威

▲建筑外觀
這是一家專為老年癡呆癥養老院設計–“Furuset Hageby”的新養老院,旨在滿足未來老年人護理和生活的需求,創造生活的連續性,避免住養老院的不好體驗。
通過休閑花園、日常功能開放區(如理發店、餐廳、文化館、雜貨店)和癡呆癥友好型設計,未來的居民將生活在一個熟悉而溫馨的村莊環境中,而護理人員也將有一個有吸引力的工作場所。隨著越來越多的老年人受到老年癡呆癥的影響,有必要對醫療保健服務和設施進行創新和重新思考。

▲一條通往村莊的路
Furuset Hageby 是醫療保健建筑發揮關鍵作用的典范,因為物理環境可以改善癡呆癥患者的身心健康,并為護理人員創造良好的工作環境,打造老人友好型的居家環境。

▲體塊相交的室外環境

▲室內環境
這些建筑提供了室外與室內之間的空間變化和聯系,讓居民可以根據自己的能力選擇社交接觸的程度。一條村街貫穿整個建筑群,將文化之家、美發沙龍、醫生辦公室、餐廳、商店、圖書館、活動室和健身房連接起來,居民和村外的居民可以在這里聚會,形成一個社區。

▲頂視圖

▲老建筑分解分析圖
這里的生活和外觀設計就像一個傳統的鄉村社區,112 名居民可以在安全的環境中自由走動,盡可能發揮主觀能動性和自由”。3RW Arkitekter 的建筑師兼合伙人 Sixten Rahlff 說:”這些建筑以村莊概念為基礎,目的是讓居民能夠在一個有護理、活動和休閑綠地的社區中享受生活。

▲綠色屋頂

▲相互交織的庭院
綠色屋頂花園、感官庭院和鄉村街道–綠色和感官戶外環境已成為 Furuset Hageby 的標志。其主要設計特點是由一系列建筑組成三個相互交織的庭院,這些庭院平緩地坐落在景觀中,適應了地形高度的變化,并為貫穿整個村莊的室外綠地提供了空間。環形屋頂花園為癡呆癥患者創造了一個舒適的連續性,確保他們總能安全地回到起點。屋頂花園內有大量植被、香草園、溫室和休息區。

▲綠色材料
“未來建筑 ”是挪威的一項創新計劃,它將社會可持續性、環保舉措和建筑質量結合在一起,展示了一系列創新性的竣工項目。Furuset Hageby作為 “未來建筑 “項目,旨在為未來的可持續發展和包容性建筑提供鼓舞人心的新標準。Furuset Hageby “由于使用了二氧化碳排放量低、有害物質減少和凈積極性高的建筑材料,獲得了英國建筑性能評估體系(BREEAM)的 “優秀 “認證。

▲豐富的感官色彩

▲豐富的感官色彩
”這是為患有癡呆癥的老年人設計的,其主要目標是通過設計一個感覺更像農村社區的家而不像養老院的養老院,來改善他們的生活質量和護理體驗,”建筑師兼 NORD 建筑設計公司合伙人 Johannes Molander Pedersen 說。

▲考慮了在地性的村莊
04
花園養老院/瑞典

瑞典是繼法國之后世界上第2個進入老齡化社會的國家,2016年則老齡化已高達20%。瑞典人的平均壽命高居世界前十位,高品質的生活方式和質量讓瑞典變成了一個非常吸引人的養老圣地。
“花園”的設計是以當代研究為背景的,研究表明老年人在護理中心的幸福感與有吸引力的綠色戶外環境和社交互動密切相關。因此,我們空間設計中的要素是為老年人安排舒適的住宅,方便他們進入自己的花園、室外空間和共享設施。

▲花園設計
為老人組織內部空間的方式對于住戶、工作人員、親屬和其他人之間的動態社會互動至關重要。面向中庭庭院的外墻采用了堅固耐用的木板,維護成本低,對環境影響小。這與院子里不同的樹木、水和植物的景觀安排一起,創造了一種具有吸引力的親密和溫和的氛圍。

▲入口

▲入口外觀
兩層的建筑方案使得老年人可以直接從一層的中庭庭院、或者通過二層寬敞的屋頂露臺進入地面的花園。從內部透過巨大的窗扇,可以與庭院花園間進行視線接觸。這增加了安全感,并且激發他們探索室外環境和與他人互動交流的意愿。

▲老人在舒適的環境自洽
在走廊和單獨的房間單元周邊,我們創設了訪客中心、公共設施和共享空間,以增強歸屬感和參與感——一種覺得不孤單的不可或缺的感受。

▲明媚的公共空間
建筑物的外部面向當地大規模的工業建筑、森林和農業景觀,并覆蓋有纖維水泥圖案。該圖案具有不同的顏色和色調,與周圍綠色田野的明亮色調相對應。外墻的表達方式類似于紡織業的十字繡邊框,環繞著建筑。

▲外立面與周圍環境融合

▲一層平面

▲剖面圖

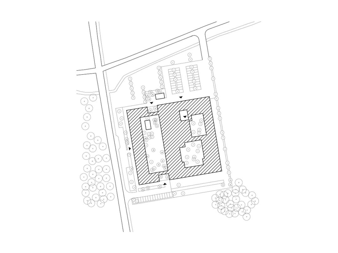
▲總平面
結語
只有讓老人的靈魂安放,我們的方案才不是多此一舉。
從日本精細化的適老化設計、北歐人性化的自然融合模式,到我國在應對龐大老年群體過程中的探索與實踐,不同國家和地區基于自身國情與文化,在養老建筑領域走出了各具特色的道路。
未來,期待通過汲取多方智慧,探索出更契合我國國情、更溫暖包容的養老建筑方案,真正讓每一位 “銀發族” 都能找到靈魂的棲居之所,擁有幸福的晚年生活。
資料引述:
1.https://www.gooood.cn/monolith-in-fukuoka-by-sako-architects.htm
2.https://gavindesign.com/yongbaochengshi-zunyan-yanglao.html
編輯? 李圍麥
責編??楊卓航
本文經授權轉載自公眾號:匠山行記
精選文章: