
購物中心已死?
商業綜合體的野心與困境
在電商沖擊與消費升級的雙重壓力下,傳統購物中心正面臨生存危機。然而商業綜合體卻以更龐大的體量和更復雜的功能持續擴張,試圖成為城市生活的終極容器。
商業綜合體一方面要創造吸引人流的新型空間體驗,另一方面又要應對同質化、數字轉型和運營效率的多重挑戰。
這些巨構建筑如何真正成為具有持續生命力的城市節點,而非短暫的商業泡沫,值得所有城市參與者深思。? ?
01
從賣場到“微縮城市”
商業綜合體的進化史,是一部不斷吞噬城市功能的野心史。深圳萬象天地正是這樣的典型案例。
在深圳萬象天地之前,華潤置地的商業地產帝國已形成相當可觀的規模,一座座萬象城、萬象匯早已落地全國眾多一二線城市,并成為當地的標桿。

▲深圳的商業地產
但是在深圳市場,這是繼羅湖萬象城后,時隔十幾年,華潤置地重新布局的全新商業項目。
十幾年里,深圳市場涌入眾多“新玩家”,人口激增、市場劇變,消費和營商環境等等早已今非昔比。
萬象天地入市后,如何與眾多商業綜合體進行差異化定位,市場打法及客群細分成為項目團隊的一大挑戰。

萬象天地位于深圳南山區高新園商圈,緊鄰世界之窗商圈、后海商圈。項目區域3公里范圍內,住宅寫字樓總計約747個,周邊常住90.33萬人。

▲項目區位
在深圳萬象天地誕生以前,商業綜合體都是偏“大盒子”的封閉式mall。
而深圳萬象天地則以街區+MALL的創新建筑形態,存在于體量超大的城市舊改項目之中。
萬象天地項目從南向北,依次是mall、高街(時尚街)、里巷(餐飲街),在項目西南角上是多家獨棟旗艦店。時光廣場、水廣場、藝文廣場等多個廣場錯落其間,形成多個聚客節點。

項目擁有300+店鋪、1000+品牌、近40家品牌首店、10座獨棟旗艦店、超2000平方米的室內兒童樂園以及24小時不打烊的國際美食餐飲街。

▲ 萬象天地街頭突破大盒子的理念,實踐「街區+mall」的設計構想,從品牌層面而言,開放式的建筑形態有助于品牌充分展示自身形象,因此也就成為眾多品牌打造旗艦店的首選。

若干個散落的“小盒子”構成的商業空間,規劃了以獨棟旗艦店構成的旗艦廣場和獨立潮牌店組成的高街區、餐飲品牌組成夜生活美食街區、大盒子購物中心,以及水廣場、藝文廣場、時光廣場等公共休閑空間。
定位于“漫步式城市創作空間”,打破封閉空間的局限,不同于以往的深圳商業體,也不同于萬象城系列,?在物質消費之外,增強了藝術化、生活化的感覺。

▲ 公共休閑空間

▲ 小盒子商業店鋪

▲ 多樣的商業旗艦店
項目團隊對于公共空間場景的應用也越發嫻熟,不僅有各式各樣交通工具出現在高街街頭,秋千、鋼琴、蹺蹺板,甚至沉浸的露營場景也被搬上了街頭。
因此,商業公共空間作為出行目的地、消費者心理地標的屬性也在這里不斷被強化。

▲ 露營場景
02如何避免同質化和空間疲勞

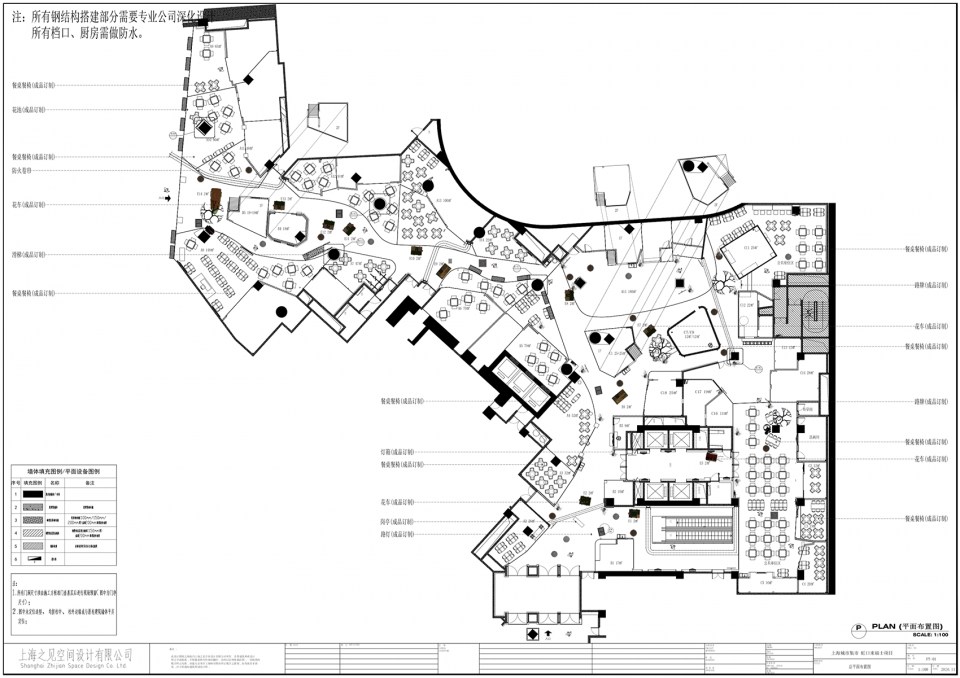
▲ 空間概覽當前商業綜合體普遍存在業態品牌趨同、空間體驗單一的問題,消費者容易產生倦怠感。而上海北外灘來福士通過打造"城市市集"主題街區,以復古場景和本土餐飲構建沉浸式在地文化體驗,為消費者創造了一個可以產生情感連接的場所。北外灘來福士-里弄位于北外灘來福士負二層,定制了“重逢·記憶中的90年代上海”的主題場景街區,旨在重現90年代上海熱鬧的弄堂文化。

▲ 街區入口比如80、90年代虹口申花隊、東亞運動會等,整個裝修設計全部采用舊改、拆遷老物件,街區用文化、場景等元素為消費者帶來不一樣的體驗,回歸市井煙火氣息,喚醒消費者的城市生活記憶。

▲ 與餐飲業態的融合
由此,空間設計上的沉浸化、體驗化、互動化是實現年輕一代圈層文化的“出圈”,消費人群也順其自然成為場景中的互動參與者。

▲ 商業街頭以場景作為基石,將記憶中的場景與餐飲業態融合在一起,消費者不僅可以在餐廳內享用美食,也可以在此拍照、與空間中不同道具產生互動,每個餐廳的場景都不同,讓人有身臨其境,穿越之感。

▲ 多樣的餐廳場景“通過場景,喚醒記憶,讓每個人找到自己內心的回憶。并且在提升餐飲業態的差異性的情況下,讓消費者在每天習以為常的生活中,用最短的時間成本下,體驗到驚喜感與差異性。”

▲ 餐廳場景
項目建筑平面整體為轉折形態,連接商場地下兩個出入口,考慮到商場大部分人群會集中到中庭交通樞紐區域,項目在設計上便將平面分割成前街(輕餐)和后街(重餐)兩個區域。

▲ 前街前街連接主入口,在平面規劃中,特意將提籃橋美食、上海老字號、特色小吃為主的業態安排在此區域,讓消費中從中庭商場進入主題街區之后,便感受到人來人往熱鬧氛圍。后街主要以重餐為主,意在連接前街人流及次入口人群,同時在后街增加不同互動場景,90年代的乒乓球臺、亞運會的打卡廣告、兒時的滑梯、弄堂內賣蘭花的蠟像婆婆等等。

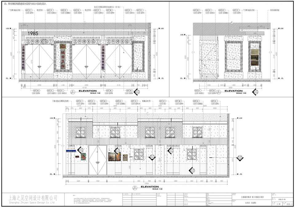
▲復古街區立面

▲多元化街區消費者在街區內并非是單純的目的性消費,可食、可游、可玩、可逛….加載不同互動內容,通過多元化街區內容連接客群。

▲ 平面圖

▲ 街區局部立面圖
03突圍的實驗
北京西單更新場的前身是西單77街購物中心,是小商品批發市場的形式。
華潤置地在2015年以“提質、減量、增綠”三個原則,歷時6年,投入6.5億,對項目進行了改造升級,最終于2021年4月正式亮相,形成了現在的THE NEW更新場。

▲ 建筑外觀

▲ 場地入口
提質,是把小商品市場改造提質成一個屬于青年潮流客群的商業地標。減量,是將600多個攤位減少至40個鋪位,租賃面積也從原來的2.2萬減到只有6000余平米。
通過大舉減量,釋放出來更多的公共空間,目前更新場82%的面積都是公共空間,也就是說,不光為原本的商鋪提高了經營質量,也提高了城市的公共生活質量。


“因為更新場只有40余個商鋪,以主理人品牌為主,每個品牌都有很多創意和想法,所以我們很樂于和他們共創。主理人如果有什么想要去實現的想法,那我們可以把公共空間留給你,一起去做好玩的事。
更讓我們驚喜的是,這些創意和玩法從更新場開始走向了全國。”

▲室內市集
“我們去年和場內的品牌做書共創了一場圖書市集,共有169余家優質出版社落地,超300位編輯擺攤及小紅書官方換書活動、腰封展、作家分享會等多維活動。
我們還與場內品牌HK和TWOFACE共同打造了復古戶外美學展,營造了戶外復古場景。”

▲戶外美學展
從更新場也走出去了很多創新的市集形式。去年年底更新場和中國國家地理、中華遺產做了一場文博市集。全國許多省博都帶著文創產品匯聚到了更新場,十分受年輕人的歡迎。
這樣的市集一方面兼具文化內涵,一方面又展現了潮流的創意。不僅豐富了更新場的活動,也展現了文化自信,助力宣傳了參展的博物館。

▲市集俯瞰

▲特展場景

▲更新前后的剖面圖
結語商業綜合體的未來發展路徑已從規模擴張轉向價值重構,成功的項目需要在商業效率與人文體驗之間找到平衡點,既保證開發者的投資回報,又滿足公眾對空間品質的期待。建筑師的角色正在發生深刻變化——不僅需要創造具有吸引力的空間形式,更要深入參與業態策劃、動線設計和運營模式創新,使商業空間真正融入城市肌理。
突破的方向或許在于通過靈活可變的場景設計適應快速變化的消費需求,唯有將商業綜合體的開發視為持續演進的生態系統,而非一次性建成產品,才能實現真正的可持續發展。
資料引述:
2.上海北外灘來福士-里弄 / 之見設計https://www.gooood.cn/shanghai-north-bund-raffles-city-long-lane-by-shanghai-zhijian-space-sesign-co-ltd.htm
3.https://mp.weixin.qq.com/s/Kb0ki7rJBLLTdoShmy2MYA
4.https://mp.weixin.qq.com/s/5UG2zPjBgMFSjVTBZTeMgg
編輯?|?吳悅祺
責編?|?王梓宇
初審 |?袁兆童
終審 |?黃 ? 山
本文經授權轉載自公眾號:匠山行記
精選文章:
Maison&Objet 2025 設計盛會:高飽和亮度引領設計新風尚