

老家的新房已經空置了5年,隨著父母陸續退休,舊房條件逐漸老化,他們終于下定決心裝修新家,這個任務也就理所當然地落在了我手里。
商品房的戶型設計更強調普適性,然而普適的產品與具體家庭個性化的需求天然存在矛盾。我家也不例外,大刀闊斧的改造勢在必行。
接下來就跟大家聊聊我是如何給爸媽改造的房子吧!

2位剛剛退休回歸家庭生活的夫婦
逢年過節偶爾回家暫住的小家庭


1.無玄關,甚至無鞋柜空間
2.電視墻只有2.4m,客廳過小
3.北廊通病,雖然通風很好,但是北面房間采光極差
4.餐廳位置太深同樣采光很差
5.主臥進深只有3m,常規布置下擺了衣柜再擺1.5m床都很局促
6.灶臺對門,風水忌諱
7.走廊盡頭對廁所,一樣是風水忌諱

毛坯房深處采光不佳
走廊盡頭正對廁所,光線陰暗略微恐怖
北側臥室采光極差,白天也必須開燈,朝向正對商場略有噪音
入戶門關閉后通風一般,無風感
廳房尺度都比較小,空間緊湊

爸媽的主要需求有以下三點:
1. ????客廳需要日常接待親戚朋友,老同學老同事;
2. ??? 餐廳足夠滿足未來一家人過年聚餐需求;
3. ??? 風水,風水,還是風水,重要的事情說三遍!
分析清楚問題以后,就開始著手一一解決。我總結了12個要點,下面詳細每個點來說說。


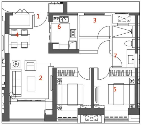
讓我們看看改善以后的平面圖:

1. 由于北面采光極差,對街又有一定噪音,直接放棄了默認的北陽臺改房間方案,兩房足夠滿足兩個老人及精神小伙過年回家的居住需求了;
2.封閉南向陽臺并入客廳,因此也需要保留北邊的生活陽臺,同時給陰暗的走廊深處引入了自然光線;
3.原餐廳位置很深,采光已經比較差了,既然封閉了南陽臺,餐廳自然可以往下移,昏暗部位作為玄關鞋帽間填上戶型的先天不足;
4.盡量少改動原有墻體的前提下,做了四分離衛生間,舊家進行了20多年的搶廁所運動到此終結;
5.主臥利用原衛生間臺盆區做成獨立衣帽間,從而剛好能放下1.8M床,走廊盡頭因此也能有堵墻作為對景;
6.灶臺改到背風處,水槽改到側對窗口,因此也獲得了更長的有效吊柜空間。?

改善后的戶型,臨街的北面已經不再有臥室的功能。除了隔絕來自外部的噪音,我們還希望考慮家庭使用中的帶來的噪音問題。
在單一年齡結構的家庭中,動靜分區就是個偽命題,一個人睡了,另一個人不可能還在動區自嗨,更需要關注的其實是“靜區”內的互相干擾。老人睡眠淺,又通常有起夜的習慣,原戶型廁所緊靠主臥,一旦馬桶沖水很容易會吵醒睡主臥的人。在臥室和廁所之間增加衣帽間,除了提供空間上的阻隔之外,衣帽間掛滿了衣服,天然也有吸聲的效果。入住實際體驗,主臥關門后只會聽到微弱的沖水聲音。

衣帽間同時解決了主臥太小的問題,向外拓展的衣帽間節省了衣柜空間,將主臥空間完全保留給睡眠區,因此能夠從容放下一米八的雙人床和兩個標準床頭柜。


建筑規范中,養老建筑的采光需求甚至高于一般的商品房,老年人視力下降,更加需要良好的采光,昏暗環境容易造成許多意外。
原戶型南面是結構內的凹陽臺,導致客廳采光較差,餐廳部位必須全天開燈,北面窗外則是連廊,光線同樣昏暗。改造后平面將南面陽臺封閉并入客廳,客餐廳整體外移進入采光良好區域。

在剩余的昏暗空間設置對采光需求不高的鞋帽間,同時補足缺失的玄關功能。

北面由于采光保留為生活陽臺,同時釋放了一個空調位的空間,從而利用原有格局形成了標準的日式四分離衛生間(洗面-獨立廁所-洗衣更衣-淋浴),生活陽臺同時為陰暗的走廊深處帶來自然光線。


良好的通風不僅帶來新鮮空氣,還能帶走多余的熱量和濕度。
老家位于亞熱帶,房子臨江,再往前幾公里就是入海口,所以外部通風條件良好,氣候濕熱也有巨大的通風需求。封陽臺用了可以完全打開的重型(防臺風)折疊門,打開以后室內外完全連通,夏天多數時候風大到可以不開風扇。

另一方面,北面陽臺與完全開放的客廳形成了氣流通路,進一步加強全屋的通風,南面的兩間臥室因此同樣具有良好的通風。


玄關作為戶內外的過渡空間,需要防止室外灰塵帶入室內,同時要收納鞋帽外套等次凈衣物;作為臟區,掃地機器人充電座也設置在這里。臟區(瓷磚)與凈區(木地板)之間使用了不同地面材質進行區分,瓷磚和木地板用的是1cm高的T型斜邊壓條收口,阻隔灰塵同時不至于絆腳。


2003年香港淘大花園SARS病毒傳播據說是通過下水管道,即使不考慮病毒的問題,容易干涸的干區地漏同樣會散發臭味,網上的解決辦法一般是升級深水封地漏并定期加水,然而新房的衛生間沒有降板做不了深水封,定期加水更是不像個解決辦法。

最后采用的辦法是陽臺地漏和臺盆、洗衣機地漏共用一個水封,廁所地漏和浴室地漏共用一個水封,臺盆、淋浴、洗衣機都是每天要用的,因此能避免存水彎中的水干涸,管道臭氣泄漏。

老人最怕的就是摔跤,尤其70歲以后摔一跤可能就是生命的轉折點。因此無高差設計就成了重中之重。?
除了北面生活陽臺天然有較大高差,做平要付出的經濟代價和層高代價過大,因此設了一處門檻石以外,其余部位保證全屋純平。所有推拉門都做成吊趟式無地軌,避免絆腳,同時也方便打掃衛生,甚至連浴室門都沒做高差。?


前面提到老人出于安全的需要對采光要求更高,同樣光線死角以及起夜路線就變得危機四伏。因此我在所有吊柜下方都增加了補充光源,消滅“燈下黑”的狀況,此外起夜路線周邊的墻面也安裝了按時開啟的地腳燈和感應式的小夜燈,照亮地面的同時不至于打擾另一位老人的睡眠。



區別于年輕人追求的客廳無電視無茶幾,甚至無沙發,老人要的很傳統,就是沙發茶幾電視三件套,一個氣派的客廳就代表了在老伙計們心中的臉面。老人也不存在社交尷尬癥,客人上門泡茶聊天以及留下吃飯都是常有的事。
封陽臺并入客廳后,客廳空間放大,電視墻長度從2.4M提升到了4.1M,空間感受大大提升,從此與”小家子氣“一詞絕緣。

餐廳一側做了卡座,平常可以坐下4-5人,人多的時候餐邊柜的擱板還可以折疊,其下方還收納了一個兩人位的板凳,將餐桌拉出來最多可以坐下8人。


老人節省、戀舊,舊物越屯越多,不解決這個問題只會讓家里雜亂無章。
設計收納的一大原則是就地收納,方便快捷。全屋各個空間都根據功能需求設計了相應的儲藏空間,嚴格控制收納步驟,就地收納,隨手收納。


再者就是集中收納,雖然房子很小,還是擠出了玄關鞋帽間和主臥衣帽間兩處集中收納,再大的物件也能放得下。


印象中的適老設施:

(圖片來自網絡,侵刪)
對于六十上下“初老”的老年人來說,心理上對散發著醫護感的輔助設施是相當抗拒的。類似上圖的扶手、坐浴設施都太過直接,“委婉”的適老化設計更容易讓老年人接受。?如何做到委婉呢?答案就是附加其他功能,弱化“適老”屬性。
馬桶邊的扶手用一個金屬小推車替代,小推車上層可以放紙巾盒和小風扇,夏天上個廁所不至于洗桑拿,下層剛好可以收納10卷裝的整條紙抽,超市買回來直接放這,從根源上免去了叫人遞紙的尷尬。小推車輪子可以上鎖提供足夠的穩定性,腿麻了要起身自然就會扶著它。

浴室用防腐木打了一個坐凳,圖中坐凳底下的泡腳桶就是它當前的偽裝:在這里泡腳就不用搬著沉重的木桶跑來跑去了。而在十幾年后,當老人腿腳不便洗澡需要幫助時,這個浴凳就能派上用場。

浴室和廁所對老年人來說是危險高發地,常有老人昏倒在淋浴房或馬桶上。新房浴室和廁所之間設計了一扇提拉窗,老人在任何一處沒有回應時,家人都可以通過另一側進入救援。
提拉窗明面上同樣重要的一項功能是給廁所提供通風和采光。窗戶采用磨砂玻璃透光不透影,平時上半部常開,令廁所與明衛無異。窗臺高60cm,避免成為常規通道的同時,在廁所一側留出的寬度剛好能放下一部手機。

浴室一側的提拉窗前則放置了落地的金屬浴巾架作為進一步的視線阻隔。浴巾架很輕,需要時可以輕松搬開,打開提拉窗下半部分鉆入廁所,或者從廁所鉆入浴室。浴巾架底部集成了塑料臟衣簍,方便洗澡的時候直接更衣,臟衣簍也帶有輪子,可以直接拖到生活陽臺洗衣服。浴巾架頂部正對風暖,冬天洗完澡也有烘熱的毛巾提供幸福感。?


風水有其科學的一面,比如所謂“穿堂煞”,主臥門正對入戶門,理性的解釋是這樣一來主臥私密性會降低,當然也有其迷信的一面,比如在某某方位擺個什么物件這種,就沒有任何科學依據。不過風水最重要的一面,是父母信它,那就只能安排了。
首先,原來開門見廳,現在有了玄關作為過渡,至少開門不會直接見到沙發了。


其次,廚房灶臺與水槽位置對調,避免開門見灶。此處修改確實也存在科學的一面:灶臺藏到背風面,避免火焰被風吹滅引起燃氣泄漏;此外水槽換位后上方可以做整排的吊柜空間(原戶型則會被煙機占用一大部分儲存空間)。

再次,原戶型廁所門直對走廊,走廊深處光線又陰暗,看著確實有點恐怖,格局改造后,走廊盡頭是墻面對景,側面又有生活陽臺提供采光,整個空間感受都得到了提升。

最后,餐廳卡座上方的神龕,朝向是完美的坐北朝南,爸媽表示無可挑剔。


區別于年輕人的房子,適老住宅存在其特殊性,特別是其安全屬性,甚至能決定兩代人過后幾十年的生活質量,一定要特別注意相關的細節處理。
此外老一輩人通常會本能地守舊、抗拒新生事物,常常看到有網友因為裝修和父母大鬧矛盾,實際上還是要特別關照老年人的心理感受,注意溝(HONG)通(PIAN)技巧,即使面對的是自己的至親。
內容經授權轉載自公眾號“SEEDOLOGIST”
精選文章:
非特殊說明,本文版權歸原作者所有,轉載請注明出處:大作網